Mobile Menu Toggle
Úvod
Katalog domů
Individuální stavby
Dřevostavby
Naše činnosti
Nová zelená úsporám
Oprav dům po babičce
LIGHT
Foukaná izolace
Reference
Fotogalerie
Komerční výstavba
Videa
Povinná publicita
Certifikáty
Mapa realizovaných staveb
Projekční činnost
Kontakt
Mobile Menu Toggle
Úvod
Katalog domů
Individuální stavby
Dřevostavby
Naše činnosti
Nová zelená úsporám
Oprav dům po babičce
LIGHT
Foukaná izolace
Reference
Fotogalerie
Komerční výstavba
Videa
Povinná publicita
Certifikáty
Mapa realizovaných staveb
Projekční činnost
Kontakt
Jste zde:
Titulní stránka
Katalog domů
P-G 80 + 80 I
P-G 80 + 80 I
The add to cart button will appear once you select the values above
Specifications
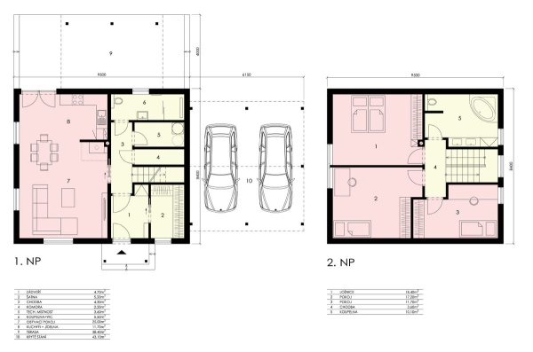
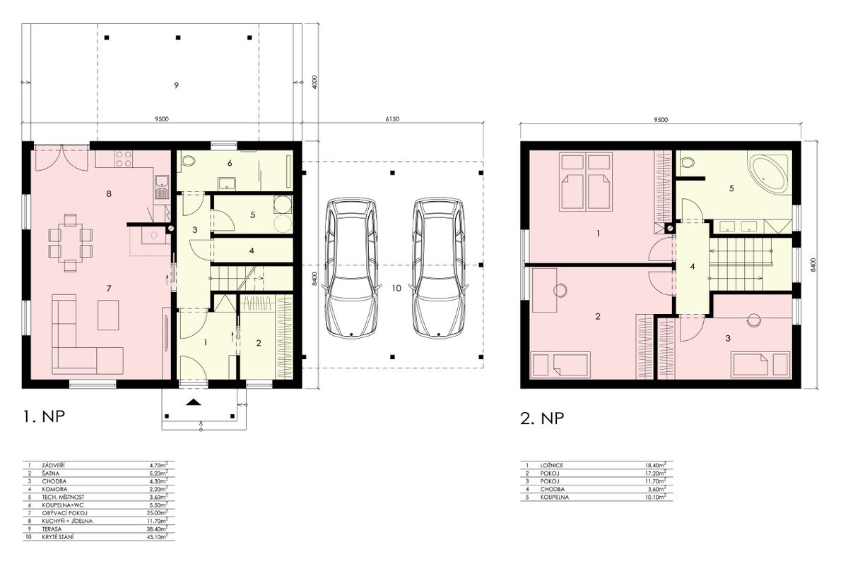
Zastavěná plocha v m2
80 + 80
Užitná plocha celkem v m2
61,02 + 61
Počet místností
4+kk
Typ střechy
sedlová
Počet místností: 4+kk
Zastavěná plocha: 80 + 80 m2 do patra
Užitná plocha přízemí: 62,02 m2
Užitná plocha patro: 61 m2
Typ střechy: sedlová
Cena za stavbu domu na klíč bez základové desky a DPH: 4.360.000,- Kč
Cena za HRUBOU STAVBU domu bez základové desky a DPH: 3.440.000,- Kč
Mobile Menu Toggle
Úvod
Katalog domů
Individuální stavby
Dřevostavby
Naše činnosti
Nová zelená úsporám
Oprav dům po babičce
LIGHT
Foukaná izolace
Reference
Fotogalerie
Komerční výstavba
Videa
Povinná publicita
Certifikáty
Mapa realizovaných staveb
Projekční činnost
Kontakt