Mobile Menu Toggle
Úvod
Katalog domů
Individuální stavby
Dřevostavby
Naše činnosti
Nová zelená úsporám
Oprav dům po babičce
LIGHT
Foukaná izolace
Reference
Fotogalerie
Komerční výstavba
Videa
Povinná publicita
Certifikáty
Mapa realizovaných staveb
Projekční činnost
Kontakt
Mobile Menu Toggle
Úvod
Katalog domů
Individuální stavby
Dřevostavby
Naše činnosti
Nová zelená úsporám
Oprav dům po babičce
LIGHT
Foukaná izolace
Reference
Fotogalerie
Komerční výstavba
Videa
Povinná publicita
Certifikáty
Mapa realizovaných staveb
Projekční činnost
Kontakt
Jste zde:
Titulní stránka
Individuální stavby
Studie Hostěradice
Studie Hostěradice
The add to cart button will appear once you select the values above
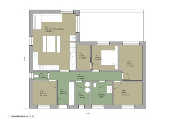
Specifications
Zastavěná plocha v m2
133
Užitná plocha celkem v m2
106,98
Zastavěná plocha: 133 m2
Užitná plocha celkem: 106,98 m2
Počet místností 5+kk
Realizováno: ve výstavbě
Mobile Menu Toggle
Úvod
Katalog domů
Individuální stavby
Dřevostavby
Naše činnosti
Nová zelená úsporám
Oprav dům po babičce
LIGHT
Foukaná izolace
Reference
Fotogalerie
Komerční výstavba
Videa
Povinná publicita
Certifikáty
Mapa realizovaných staveb
Projekční činnost
Kontakt